Wo möchten Sie
Besser Wohnen ?

Geschäftsfläche mit großem Potential an viel frequentiertem Standort!

3 Zimmer - 332,97 m2 - Preis auf Anfrage

Details zum Objekt

Vielfältig nutzbare Gewerbefläche mit großem Potential in stark frequentierter Top Lage - Annenstraße 3, 8020 Graz.


In der Annenstraße 3, unweit des Kunsthauses im aufstrebenden Trendviertel Lend, befindet sich diese Lokalfläche in ausgezeichneter und sehr frequentierten Lage mit optimaler Anbindung an öffentliche Verkehrsmittel (Straßenbahnlinien 1,3,6 und 7 von der Station Südtirolerplatz sowie Stadtbusse von der Station Roseggerhaus). Auch per Auto ist sie sehr gut erreichbar, diverse Garagen (Kunsthaus-Garage, Orpheum-Garage, Parkhaus Griesgasse) befinden sich in der Nähe.

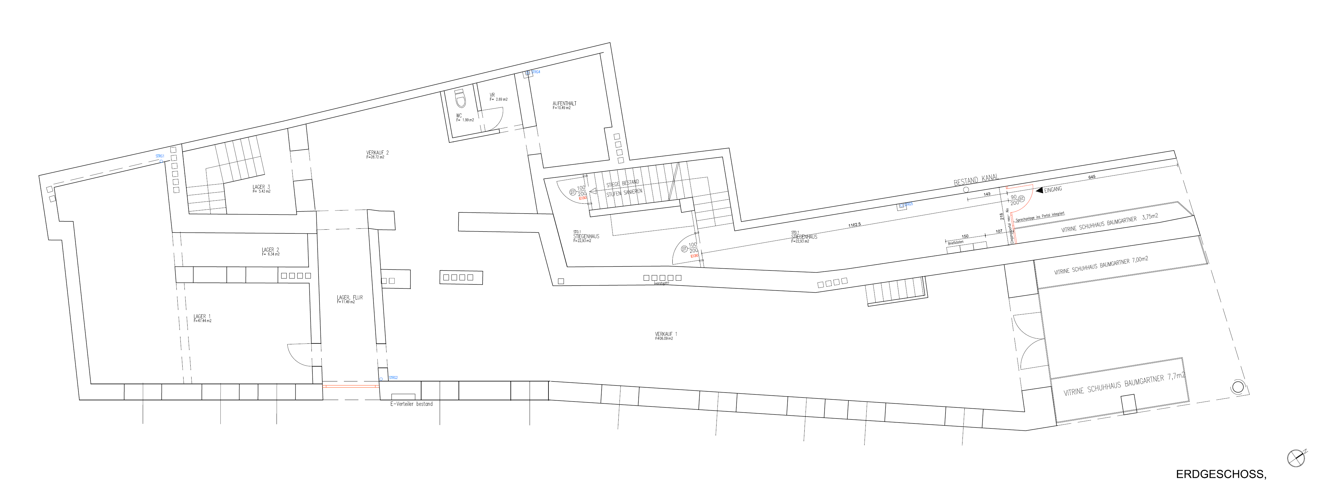
Die großzügige Lokalfläche ist hervorragend adaptierbar und eignet sich daher für vielseitige Nutzung (Geschäftsfläche, Bürofläche, Ordinationsräumlichkeiten, Restaurant,...). Die Visualisierungen zeigen klar das große Potential, das diese Gewerbeimmobilie besitzt! Die Innenflächen können individuell gestaltet werden, die Raumgrößen und deren Nutzung sind ebenso nach individuellem Bedarf anpassbar. Des weiteren können 2 separate Eingänge (1x Annenstraße, 1x Andrägasse) genutzt werden.

Teilflächen, wie die Vitrinenflächen (18 m²) und die großzügigen Kellerflächen (112 m²) können, wenn kein Eigenbedarf besteht, vermietet werden!

Laut Hausverwaltung sind keine großen Reparaturen geplant.


Das Besondere auf einen Blick:

  • 220 m² Nutzfläche im EG
  • 112 m² Nutzfläche im Keller
  • 18 m² Vitrine
  • Raumgrößen- und Nutzung adaptierbar
  • vielfältige Nutzungsmöglichkeiten
  • 2 separate Eingänge
  • beste Lage im Trendviertel Lend
  • hohe Passanten-Frequenz
  • sehr gute Erreichbarkeit
  • Teil-Vermietung möglich

Weitere interessante Eigentums- und Mietobjekte finden Sie auf unserer Homepage - www.bewo.at

Wir freuen uns auf Ihren Besuch!


BEWO-Verkaufs-Service: Sie wollen eine Wohnung, ein Haus, ein Grundstück verkaufen? Gerne übernimmt unser erfahrenes Vertriebsteam die professionelle Vermarktung Ihrer Immobilie. Profitieren Sie dabei von unserer langjährigen Erfahrung, unseren vielfältigen Verkaufskanälen und Vermarktungsmaßnahmen. Unser Vertriebsteam steht für Ihre Fragen gerne zur Verfügung, kontaktieren Sie uns unter vertrieb@bewo.at oder unter der Tel.Nr. 0316/870285.

Grundriss > Download
Objekt Typ
Gewerbefläche
Standort
Annenstraße 3 , 8020 Graz
Fläche
332,97 m2
Kellerfläche
112,00 m2
Räume
3
Badezimmer
1
Energieklasse
E
HWB-Wert
171,00 kWh/m2a

Ausstattung

  • Keller

Entfernungen

Business
Ansprechpartnerin
Markus Lackner · markus.lackner@bewo.at
T: +43 316 82 02 87-06 · M: +43 664 183 2182
Ansprechpartnerin